Skip to main content
In vendita

Prestigioso appartamento con terrazzo Cortina D’Ampezzo

Viale Cortina d’Ampezzo, Roma, RM, Italia
880.000€
Appartamento
  • Locali: 4
  • Mq: 147
  • Bagni: 1
  • Stato: Ottimo
  • Piano: 2
  • Zona: Cortina D’Ampezzo
Servizi:
  • Riscaldamento autonomo, Posto auto, Giardino, Portiere, Ascensore, Terrazzo
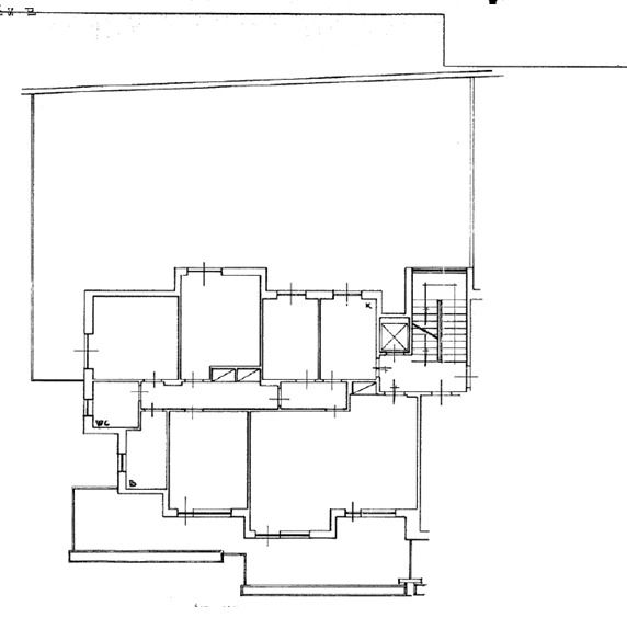
L’Agenzia immobiliare Dominvest propone in vendita un appartamento in elegante comprensorio posto al secondo piano di uno stabile in cortina degli anni ’90. Internamente si compone di: soggiorno pranzo, tre camere matrimoniali, due bagni patronali entrambi con finestra, cucina abitabile, studio, terrazzi perimetrali e giardino in parte terrazzato. Completano la proprietà un box auto collegato con l’ascensore ed un posto auto scoperto oltre alla possibilità di parcheggiare in un’ampia zona dedicata agli ospiti all’interno del comprensorio. L’appartamento, unico nel suo genere, è dotato di tripla esposizione, la zona giorno con ampi terrazzi perimetrali affaccia a sud sul parco dell’Insugherata mentre la zona notte e la cucina affacciano sullo splendido giardino terrazzato dotato di gazebo e zona barbecue. L’immobile si presenta in ottimo stato ed è dotato di pavimenti in parquet, bagni in marmo, infissi con doppi vetri, inferriate cucina completamente arredata, armadi su misura e lavanderia esterna. Possibilità di ripristinare la seconda porta di ingresso e eventualmente frazionare l’immobile in due unità. *Le presenti informazioni e planimetrie sono meramente indicative e non costituiscono elementi contrattuali.
Virtual Tour

Prenota un appuntamento