Skip to main content
In vendita

Appartamento con terrazzo Balduina

Viale delle Medaglie d’Oro, Roma, RM, Italia
450.000€
Appartamento
  • Locali: 3
  • Mq: 148
  • Bagni: 1
  • Stato: Da Ristrutturare
  • Piano: t
  • Zona: Balduina
Servizi:
  • Riscaldamento centralizzato, Giardino
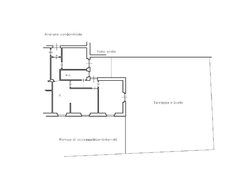
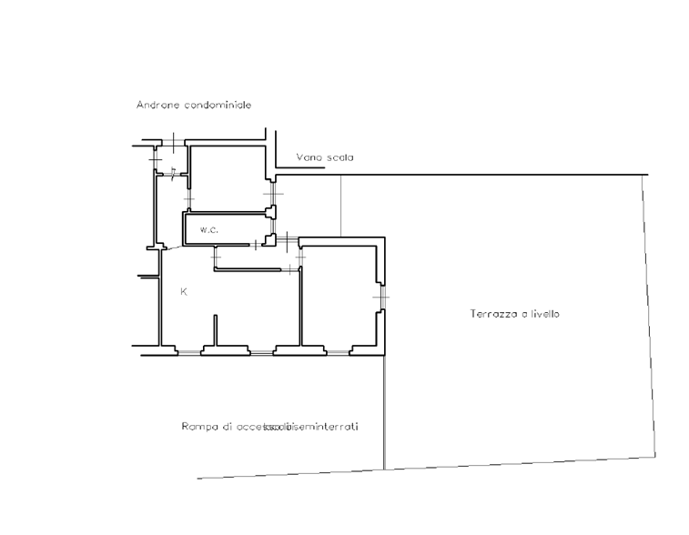
L’agenzia immobiliare Dominvest propone in vendita un appartamento con ampio terrazzo privato, situato nel cuore del quartiere Balduina, in Viale delle Medaglie d’Oro. L’immobile, posto al piano terra rialzato, si compone di ingresso, soggiorno, cucina abitabile, due camere e bagno. Completa la proprietà una grande terrazza, uno spazio esterno di ampia metratura che rappresenta un valore aggiunto raro in zona, ideale per momenti di relax, pranzi all’aperto o per chi desidera vivere gli spazi esterni in totale privacy. Si precisa che i metri quadri interni sono 96 mentre la terrazza sono circa 210 mq. L’appartamento si presenta da ristrutturare, offrendo la possibilità di essere personalizzato secondo le proprie esigenze e valorizzato nel tempo. Soluzione ideale per chi è alla ricerca di una casa con spazi esterni vivibili, in una delle zone residenziali più richieste di Roma, senza rinunciare alla comodità dei servizi e dei collegamenti. *Le presenti informazioni e planimetrie sono meramente indicative e non costituiscono elementi contrattuali.  

Prenota un appuntamento