Skip to main content
In vendita

Attico in vendita Via Crispi

Via Francesco Crispi, Roma, RM, Italia
1.450.000€
Attico/Mansarda
  • Locali: 4
  • Mq: 110
  • Bagni: 2
  • Stato: Ottimo
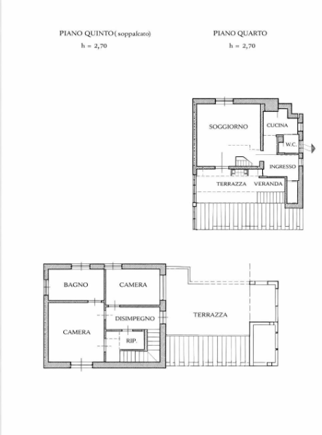
  • Piano: 4 e 5
  • Zona: Centro Storico
Servizi:
  • Aria condizionata, Riscaldamento autonomo, Terrazzo

L’Agenzia immobiliare Dominvest propone in vendita uno splendido appartamento su due livelli situato al 4° e 5° piano (attico e superattico) di una palazzina storica nel cuore del centro di Roma. L’immobile, collegato internamente da una comoda scala, si trova in una posizione esclusiva, a soli 2 minuti a piedi da Piazza di Spagna, in uno dei contesti più prestigiosi e ricercati della città.

L’appartamento si compone di: ingresso, ampio soggiorno, cucina, veranda, due bagni, due camere da letto, ripostiglio e due splendide terrazze.

La proprietà gode di tripla esposizione, risultando estremamente luminosa durante tutta la giornata. Gli spazi esterni rappresentano un valore aggiunto raro per la zona, ideali per momenti di relax o per accogliere ospiti in un contesto esclusivo.

Soluzione ideale sia come abitazione di rappresentanza sia come investimento di pregio nel cuore del Centro Storico.

*Le presenti informazioni e planimetrie sono meramente indicative e non costituiscono elementi contrattuali.

Prenota un appuntamento