Skip to main content
In Affitto

Negozio in locazione Via Torino

Via Torino, Roma, RM, Italia
7.700€
Negozio/Locale commerciale
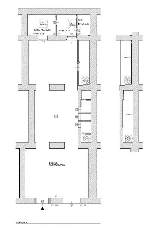
  • Mq: 204
  • Bagni: 1
  • Stato: Ottimo
  • Piano: t
  • Zona: Centro Storico
Servizi:
L’Agenzia immobiliare Dominvest propone in locazione un immobile commerciale ubicato in Via Torino con affaccio sul Teatro dell’Opera. Il negozio, di circa 200 mq piano terra e circa 15 mq di soppalco, è dotato di due ampie vetrine e tre piccole vetrine espositive. L’altezza interna è di oltre 5 metri. Sono presenti inoltre, due lucernari in corrispondenza della chiostrina interna. Ottima visibilità e passaggio. Richiesta fideiussione bancaria a garanzia. *Le presenti informazioni e planimetrie sono meramente indicative e non costituiscono elementi contrattuali.

Prenota un appuntamento