Skip to main content
In vendita

Negozio in vendita Via Torino

Via Torino, Roma, RM, Italia
1.200.000€
  • Locali: 1
  • Mq: 204
  • Stato: Nuovo
  • Piano: t
  • Zona: Centro Storico
Servizi:
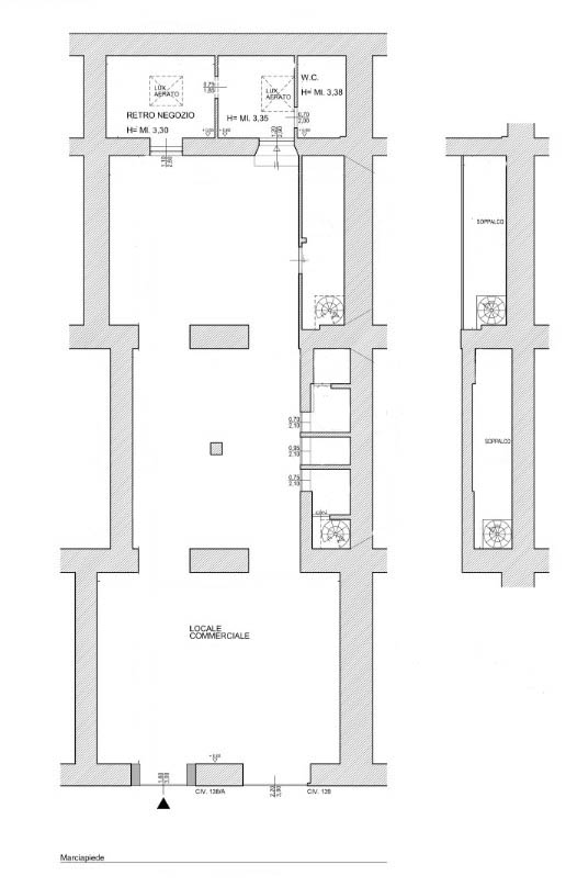
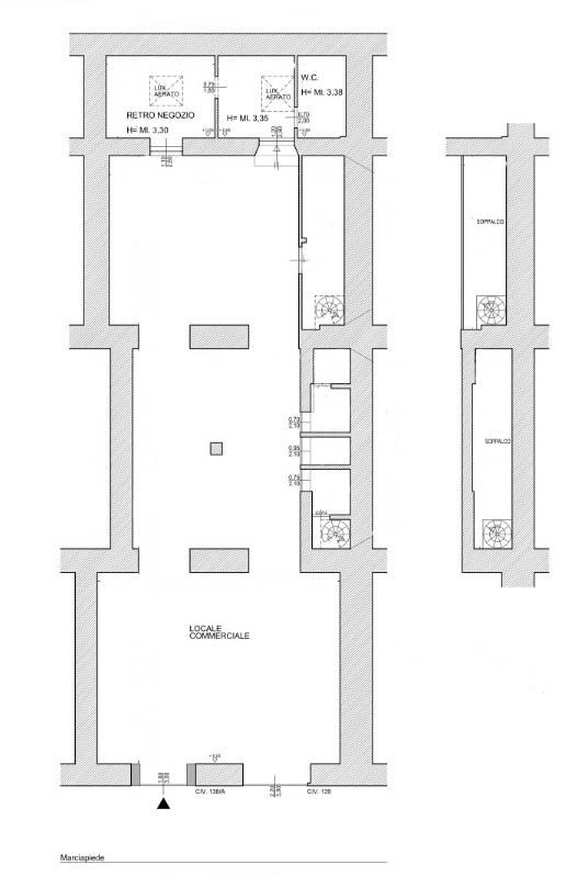
L’Agenzia immobiliare Dominvest propone in vendita un immobile commerciale ubicato in Via Torino con affaccio sul Teatro dell’Opera. Il negozio, di circa 200 mq piano terra e circa 15 mq di soppalco, è dotato di due ampie vetrine e tre piccole vetrine espositive. L’altezza interna è di oltre 5 metri. Sono presenti inoltre, due lucernari in corrispondenza della chiostrina interna. Ottima visibilità e passaggio.   *Le presenti informazioni e planimetrie sono meramente indicative e non costituiscono elementi contrattuali.

Prenota un appuntamento