Skip to main content
In vendita

Villa in vendita Maremma tosco-laziale

Casale Cacciata Grande, Strada Cacciata Grande, Pescia Romana, VT, Italia
700.000€
Villa
  • Locali: 5
  • Mq: 452
  • Bagni: 5
  • Stato: Ristrutturato
  • Piano: 3
  • Zona: Pescia Romana
Servizi:
  • Aria condizionata, Riscaldamento autonomo, Posto auto, Giardino, Terrazzo
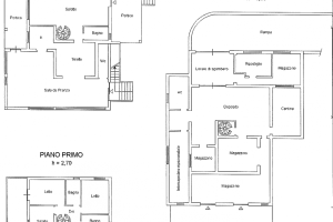
L’Agenzia immobiliare Dominvest Roma Capalbio propone in vendita una villa di ampia metratura posta al confine tra Pescia Romana e Pescia Fiorentina in una delle zone più autentiche della Maremma tosco-laziale. La villa si sviluppa su tre livelli: il piano terra/rialzato di circa 165 mq è caratterizzato da luminose vetrate con vista mare e presenta ingresso, salone con camino, ampia sala da pranzo, cucina, doppi servizi, una camera matrimoniale, due portici ed un patio coperto; Il primo piano di circa 72 mq è presenta quattro camere e due bagni, due camere hanno accesso ad un terrazzo angolare con vista panoramica sul litorale tosco-laziale e sulle colline toscane; il piano terra/seminterrato di circa 215 mq presenta un ampio salone taverna, sala da pranzo con due porte finestre sul piacevole patio, cucina abitabile, quattro stanze, due ripostigli ed un bagno. Completano la proprietà un ampio giardino su due livelli, numerosi ulivi produttivi, un frutteto, un boschetto ed un’ampia area di parcheggio coperta. Oltre alle superfici coperte segnaliamo la presenza di 60 mq di terrazzi, 90 mq di portici e 22 mq di pergolati tutti regolarmente accatastati. Possibilità di usufruire della mansarda che attualmente è inutilizzata. La villa ha una posizione strategica a soli 4 km di distanza dal suggestivo Giardino dei Tarocchi e a 10 minuti dalla spiaggia. *Le presenti informazioni e planimetrie sono meramente indicative e non costituiscono elementi contrattuali.

Prenota un appuntamento